CSM-V立式超微粉碎機
山東摩泉粉體技術設備有限公司是一家專業從事粉體工程行業各類超微粉碎機、超細分級機、中藥粉碎機、氣流粉碎機、氣流磨、氣流分級機、粉體改性機、粉體打散機、粉體混合機、無塵自動拆包機、管鏈式輸送機及各種輸送設備配料系統等設備的經營。
CSM-V系列內分級式磨粉機(立式分級)是一種具有超細分級功能的微粉生產設備,跟國外ACM屬于同一類機型。 該機主要適用于粉碎莫氏3.5級硬度以下物料的粉碎,能獲得5~150um的超細粉體,大流量的冷卻氣體能用于熱敏性物料的粉碎。
設備工作原理
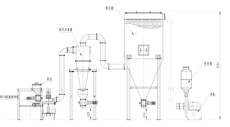
物料由加料系統均勻的送入粉碎室受到高速旋轉的粉碎盤的強烈沖擊,同時受到離心力的作用,與粉碎齒圈發生碰撞,受到剪切、摩擦、碰撞等多種綜合力的作用,使物料粉碎,被粉碎的物料隨氣流運動到分級區,通過變頻調節的分級輪,對粗細物料進行分離,符合細度要求的產品隨氣流進入旋風收集器和除塵器收集,粗物料返回分級區二次粉碎。
設備優勢
●粉碎分級一體化設計,通過調整分級輪獲得理想的產品粒度,替代傳統機型的篩網來調節細度。
●結構緊湊、占地面積小,裝機功率低、應用范圍廣,性價比高,系統粉碎時強大的粉碎氣流產生較強的冷卻功能,粉碎時溫升低,特別適用于加工熱敏性和纖維性物料,產品粒度均勻。
●可以根據物料的特性,粉碎部件靈活改變(棒狀、錘頭、齒狀等)獲得不同的粉碎力,提高粉碎效率。
●軸承、傳動帶采用進口部件,使用壽命長。
設備參數
型號/參數 | CSM-280V | CSM-350V | CSM-510V | CSM-760V | CSM-1000V | CSM-1250V | |
配 套動 力(kw) | 粉碎盤 | 7.5 | 11~15 | 22~30 | 45~55 | 90~110 | 132~160 |
| 分級葉輪 | 1.5 | 2.2 | 4~5.5 | 7.5~11 | 15 | 18.5~22 |
| 喂料器 | 0.55~1.1 | |||||
轉速(r/min) | 粉碎盤 | 7500 | 6200 | 4200 | 2800 | 2100 | 1700 |
| 分級葉輪 | 500~4500 | 500~4000 | 400~3000 | 300~2500 | 250~2000 | 200~1600 |
| 喂料器 | 20~100 | |||||
最大處理風量(m3/h) | 700 | 900 | 3000 | 5400 | 10000 | 15000 | |
粉碎粒度(um) | 5~300 | 10~300 | |||||
產 量(kg/h) | 2~100 | 10~400 | 15~600 | 30~1200 | 60~1500 | 300~3000 | |
注:產品與原料的粒度、比重、水分、流動性等指標密切相關,以上僅供選型參考。
工藝流程圖



