FW臥式多轉子式氣流分級機
山東摩泉粉體技術設備有限公司是一家專業從事粉體工程行業各類超微粉碎機、超細分級機、中藥粉碎機、氣流粉碎機、氣流磨、氣流分級機、粉體改性機、粉體打散機、粉體混合機、無塵自動拆包機、管鏈式輸送機及各種輸送設備配料系統等設備的經營。
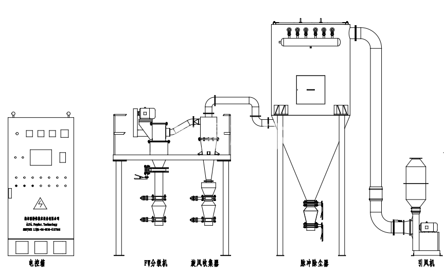
設備工作原理
分級機與旋風分離器、除塵器、引風機組成一套分級系統。物料在風機抽力作用下由分級機下端入料口隨上升氣流高速運動至分級區,在高速旋轉的分級渦輪產生的強大離心力作用下,使粗細物料分離,符合粒徑要求的細顆粒通過分級輪葉片間隙進入旋風分離器或除塵器收集,粗顆粒夾帶部分細顆粒撞壁后速度消失,沿筒壁下降至二次風口處,經二次風的強烈淘洗作用,使粗細顆粒分離,細顆粒上升至分級區二次分級,粗顆粒下降至卸料口處排出。
設備優勢
● 適用于干法微米級產品的精細分級,可分級球狀、片狀、針狀的顆粒,也可對不同密度的顆粒進行分級。
● 分級產品的粒度可達D97:2~45微米,產品粒度無級可調,品種更換方便。
● 分級效率(提取率)60%~80%,流動性好的物料分級效率就高,反之效率降低。
● 采用臥式分級渦輪裝置,轉速高,頂點切割準確。
● 可與球磨機、振動磨、雷蒙磨等粉磨設備串聯使用,組成閉路循環。
● 控制系統采用PLC自動控制,運行狀態實時顯示,操作簡便。
● 系統負壓運行,粉塵排放量不超過40mg/m3,設備噪音通過采用隔音措施,不高于75dB(A)。
設備參數
多轉子分級機
| 參數/型號 | FW400/3 | FW400/4 | FW400/6 | FW630/3 | FW630/4 | FW630/6 | FW800/3 | FW800/4 | FW800/6 |
處理量T/h | 0.2~1.5 | 0.3~2 | 0.5~3 | 1~5 | 2~8 | 3~10 | 2~8 | 3~10 | 5~15 |
產品粒徑d97:um | 2~45 | 2~45 | 2~45 | 3~45 | 3~45 | 3~45 | 4~45 | 4~45 | 4~45 |
分級效率% | 60~80 | 60~80 | 60~80 | 60~80 | 60~80 | 60~80 | 60~80 | 60~80 | 60~80 |
裝機功率kw | 90-110 | 120-140 | 170-200 | 135-155 | 170-190 | 250-290 | 180-200 | 220-290 | 290-390 |
注:處理量與原料的粒度、比重、水分、流動性等指標密切相關,以上僅供選型參考。


