RTM塔式粉碎機
山東摩泉粉體技術設備有限公司是一家專業從事粉體工程行業各類超微粉碎機、超細分級機、中藥粉碎機、氣流粉碎機、氣流磨、氣流分級機、粉體改性機、粉體打散機、粉體混合機、無塵自動拆包機、管鏈式輸送機及各種輸送設備配料系統等設備的經營。
設備工作原理
物料由加料系統均勻的送入粉碎室,受到高速旋轉的粉碎轉子沖擊,粉碎轉子由多層粉碎盤和多個粉碎刀片組成,物料受到剪切、碰撞、摩擦等多種粉碎力的作用而粉碎,合格的物料隨上升氣流進入收集區收集,粗物料返回粉碎區進行二次粉碎。
設備優勢
●采用錐形的轉子和定子,通過調整轉子和定子的間隙來控制細度和產量。
●轉子采用特殊的耐磨鋼材,線速度非常高,粉碎充分均勻。
●處理風量大,粉碎溫度低,適用于熱敏性和纖維性物料的粉碎,產品粒度均勻。
●采用臥式設計,清洗、拆機,方便快捷。
應用領域
特別適用于團聚物料的打散還原,例如:輕鈣、高嶺土、氫氧化鋁、氧化鎂以及聚乙烯醇、PVC、PE、纖維性等具有熱敏性物料超微粉碎。廣泛應用于非金屬礦、化工、染料、飼料、食品等行業。
設備參數
項目/型號/規格 | 轉子直徑 | 配套動力 | 轉速 | 最大處理風量(m3/h) | 粉碎粒度 | 產量 |
RTM-300H | 300 | 18.5~22 | 7550 | 1600 | 5~250 | 30~800 |
RTM-500H | 500 | 45 | 4700 | 2400 | 80~2000 | |
RTM-750V | 750 | 55~75 | 3000 | 3600 | 100~3000 | |
RTM-1000V | 1000 | 90~110 | 2250 | 4800 | 200~4500 | |
RTM-1250V | 1250 | 110~132 | 1800 | 6000 | 300~6000 |
部件構成:

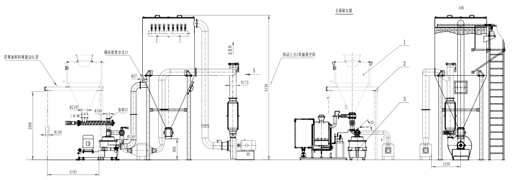
工藝流程圖


